1 Gun Box Notes
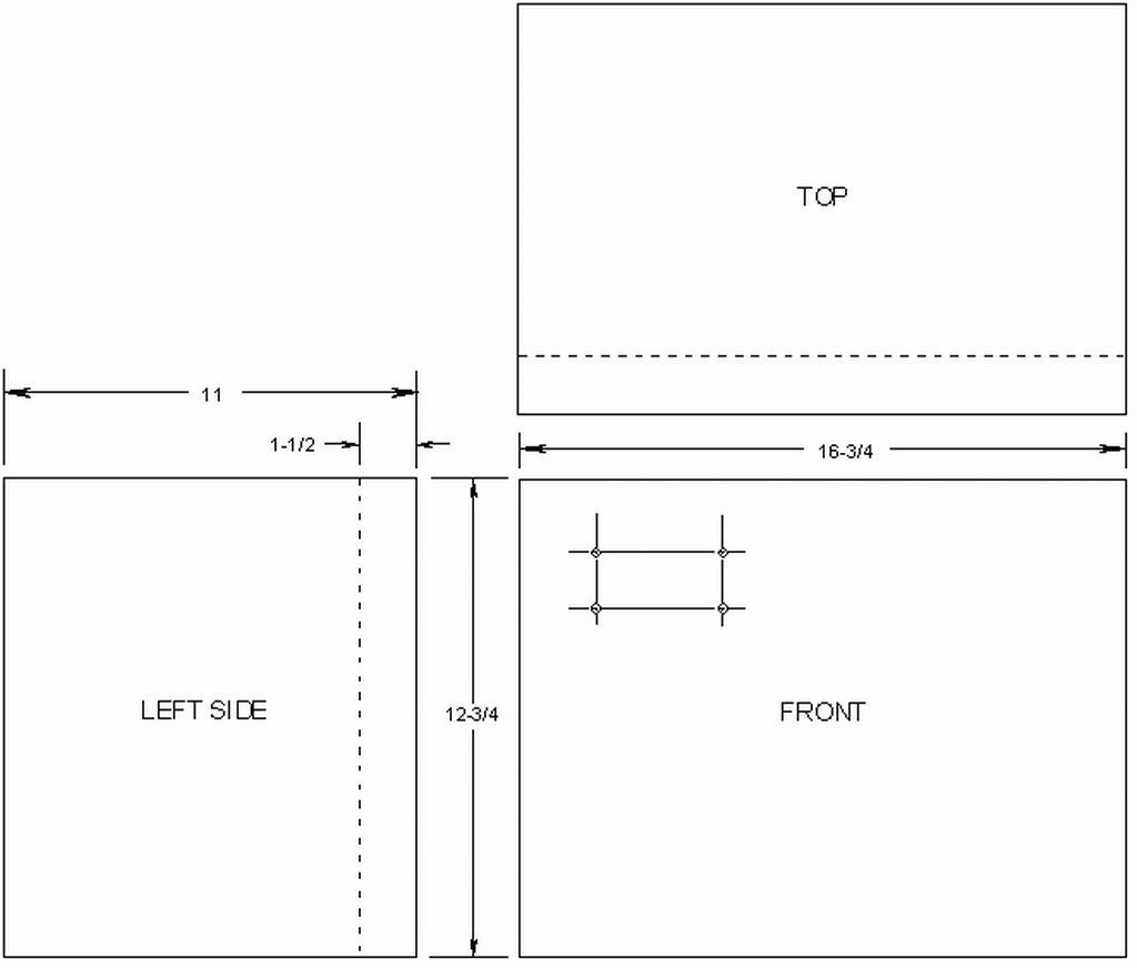
2 Left Side, Top, Front
3 Slide Rail Installation
4 Handle Locations
5 Piano Hinge Location
6 Upper & Lower Drawer
7 Scope Holder Location
All Gun Box Files Zipped
Gun Box Hard Ware
Hard Ware as a PDF
Gunbox Plans
by Dick Flag
Plans
| Bullseye Pistol Box |
Pistol Box
| Open View |